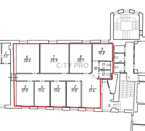
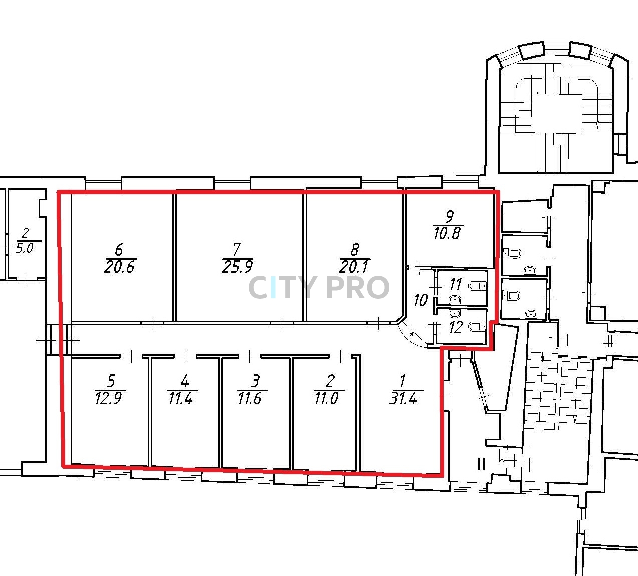
Офис 165 м.кв., 2 минуты до м. Таганская
413 750
Цена кв.м. в год: 30 000
Обзор№ - 5027
| Тип | Офисное помещение |
| Площадь (м.кв) | 165.5 |
| Арендная плата (Помесячно) | 413 750 |
|---|---|
| Этаж | 2 |
| Этажность | 4 |
| Класс | |
| Номер налоговой | 5 |
Адрес
| Улица | улица Воронцовская |
|---|---|
| Номер дома | 20 |
| Метро | Китай-город; Крестьянская застава; Пролетарская; Таганская |
В избранное Офис 165 м.кв., 2 минуты до м. Таганская
Офисное помещение с ремонтом, смешанная планировка.
Бизнес Центр, расположен в центре Москвы. Пешая доступность до метро Таганская/Марксиситская всего 1-2 мнуты пешком, а так же Пролетарская/Крестьянская застава, Китай-Город и Павелецкая.. Здание относится к 5 ИФНС.
ВНИМАНИЕ! Уважаемые арендаторы, показ помещений осуществляется по предварительной договоренности. Записывайтесь на просмотр в удобное для Вас время.
ПРЯМАЯ АРЕНДА ОТ СОБСТВЕННИКА, БЕЗ КОМИССИИ.














